ID CP2606834

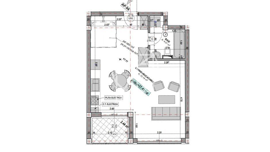
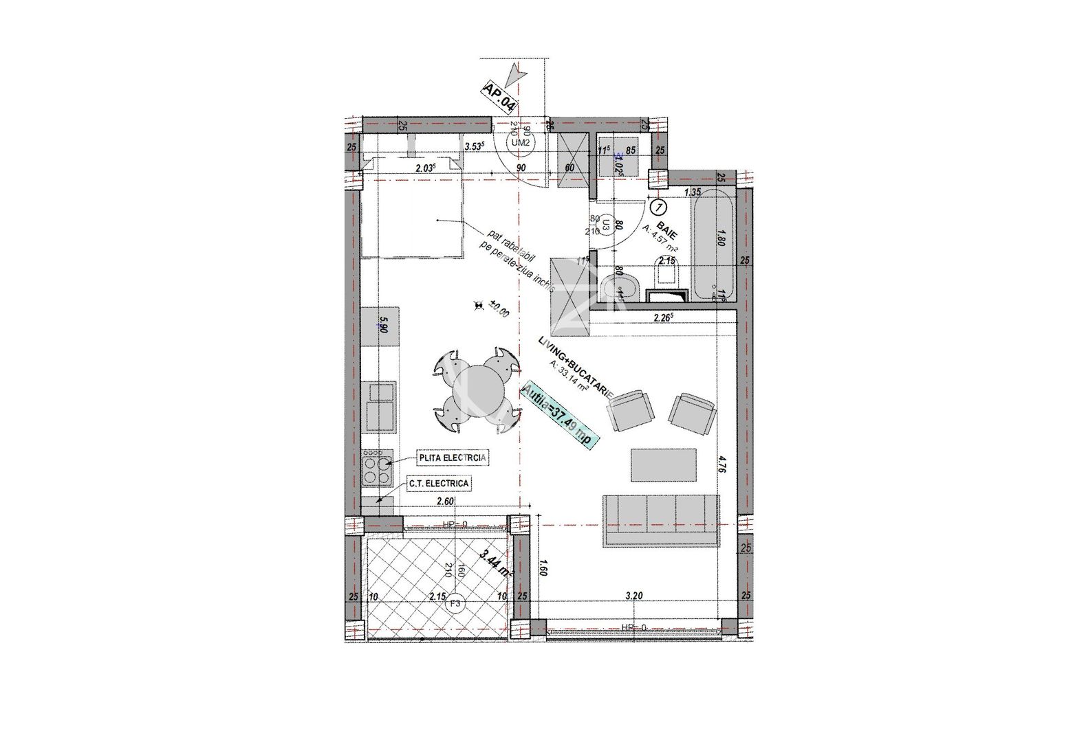
Garsoniera 37.49 mpu, logie 3.44 mp (YND-25C-GIO-ap.4)

ID CP2606834

69,900 € TVA inclus

Apartament cu 1 camere de vânzare
Exterior Vest, Sibiu
37.49 mp
2025

Garsoniera de vanzare in Sibiu, are o suprafata utila de 37.49 mp si beneficiaza de o logie cu suprafata de 3.44 mp. Aceasta se va preda la stadiul de finisat la alb, cu posibilitatea de a fi preda la stadiul de finisat la cheie contra cost.

Caracteristici tehnice de constructie:

• Eficienta energetica prin:

izolatie cu vata bazaltica, incalzire in pardoseala, centrala termica in condensatie, tamplarie PVC cu 5 camere si 3 foi de sticla, jaluzele electrice pe partea sudica

• Balcon finisat si balustrada din sticla securizata.

Caracteristici ansamblu rezidential DaVinci Homes:

• 45% din suprafata destinata spatiilor verzi

• Sistem automatizat de irigatie pentru spatiile verzi

• Arbori ornamentali maturi inca din prima zi

• Priveliste panoramica spre munti

• Orientare sudica pentru toate balcoanele

• Locuire in vile cu 6, 9 sau 12 apartamente

• 4 intrari si iesiri in cadrul ansamblului

• Locuri de joaca amenajate in cartier

• Locuri de parcare incluse

• Drumuri complet pavate

• Vile construite in trepte de nivel

Locatie: Zona de Vest a orasului Sibiu, in cartierul rezidential DaVinci Homes. Acesta este situat la o distanta de 4 minute pana la Metro si 15 minute pana in centrul istoric al Sibiului.

Comision 0 la achizitionare.

Vino in ansamblul nostru, programeaza acum o vizionare si vezi cele mai noi apartamente de pe piata imobiliara Sibiu.

(apartamentul nr. 4 vila 25C, YND )

Citește mai mult

  • Tip apartament
    Garsonieră
  • Compartimentare
    Semidecomandat
  • Număr camere
    1
  • Dormitoare
    1
  • Număr bucătării
    1
  • Număr băi
    1
  • Etaj
    Parter
  • Suprafață utilă
    37.49 mp
  • Suprafață construită
    44 mp
  • Orientare
    Sud
  • Stare interior
    Semifinisat
  • Număr balcoane
    1
  • Număr locuri parcare
    1
  • Imobil
    Casă / Vilă
  • Stadiu construcție
    Finalizată
  • An construcție
    2025
  • Construcție nouă
    Da
  • De la dezvoltator
    Da
  • Tip construcție
    Cărămidă
  • Număr etaje clădire
    2
  • Intabulare
    În Lucru
  • Mod de dobândire
    Autorizație de construire
  • Certificat Energetic
    Există
  • Clasă Energetică
    B

Facilități

Acoperiș
Apă
Bucătărie închisă
Canalizare
CATV
Centrală proprie
Curent
Gaz
Iluminat stradal
Încălzire prin pardoseală
Interfon
Internet
Izolație exterioară
Jaluzele verticale
Loc de joacă copii
Mijloace de transport în comun
Parcare deschisă
Rulouri / obloane electrice
Străzi asfaltate
Telefon
Vedere spre munte
Videointerfon
Vopsea lavabilă
DaVinci Homes - DaVinci Homes
DaVinci Homes
Manager Vânzări DaVinci

0377927117


Solicită chiar acum o vizionare
Telefon
Sună acum Solicită vizionare
Necesare:

Site-ul nu poate funcționa corect fără aceste cookie-uri. Vezi cookie-urile

Statistică:

Strângem statistici anonime despre voi, vizitatorii unici, pentru a vă îmbunătăți experiența dumneavoastră. Vezi cookie-urile

Marketing:

Pentru a ne promova mai eficient serviciile noastre, folosim cookies pentru a vă identifica și a vă oferi proprietăți și servicii personalizate. Vezi cookie-urile

Acest site folosește cookies, află detalii. Alege ce tipuri de cookies dorești să permitem: