ID CP2280162

Penthouse 5 camere - 3 bai, terasa, intabulat (HOL-91Q-Mo-ap.7)

ID CP2280162

204,000 € TVA inclus

Apartament cu 5 camere de vânzare
Exterior Vest, Sibiu
131.17 mp
2024

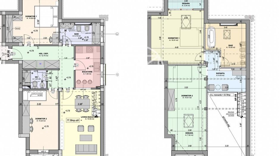
Penthouse intabulat - suprafata utila de 131.17 mp (5 camere, bucatarie separata, 3 bai).

Imobilul este intabulat si se preda la stadiul de finisat la cheie, cu bucataria mobilata fara electrocasnice. Acesta poate fi achizitionat si cu ajutorul unui credit bancar.

Contoarele de gaz si curent sunt montate, astfel te poti muta imediat.

Caracteristici tehnice de constructie:

- Eficienta energetica prin:

izolatie cu vata bazaltica, incalzire in pardoseala, centrala termica in condensatie, tamplarie PVC cu 5 camere si 3 foi de sticla,

- Balcon finisat cu granit si balustrada din sticla securizata

- Casa scarii placata cu granit

- Fatada decorata cu larice siberian si piatra naturala.

Caracteristici ansamblu rezidential DaVinci Homes:

- 45% din suprafata destinata spatiilor verzi

- Sistem automatizat de irigatie pentru spatiile verzi

- Arbori ornamentali maturi inca din prima zi

- Priveliste panoramica spre munti

- Orientare sudica pentru toate balcoanele

- Locuire in vile cu 6, 9 sau 12 apartamente

- 4 intrari si iesiri in cadrul ansamblului

- Locuri de joaca amenajate in cartier

- Locuri de parcare incluse

- Drumuri complet pavate

- Vile construite in trepte de nivel.

Cartierul DaVinci Homes este situat in zona de Vest a municipiului Sibiu, la 2 minute de mers cu masina de zona industriala Vest.

(apartamentul nr. 7 vila 91Q - HOL)

Vino in ansamblul nostru, programeaza acum o vizionare si vezi cele mai noi apartamente de pe piata de imobiliare Sibiu.

Comision 0 la achizitionare.

Citește mai mult

  • Tip apartament
    Apartament
  • Compartimentare
    Semidecomandat
  • Număr camere
    5
  • Dormitoare
    4
  • Număr bucătării
    1
  • Număr băi
    2
  • Geam la baie
    Da
  • Etaj
    2
  • Suprafață utilă
    131.17 mp
  • Suprafață construită
    150 mp
  • Orientare
    Sud
  • Confort
    Lux
  • Stare interior
    Finisat modern
  • Număr balcoane
    1
  • Număr locuri parcare
    1
  • Imobil
    Casă / Vilă
  • Stadiu construcție
    Finalizată
  • An construcție
    2024
  • Construcție nouă
    Da
  • De la dezvoltator
    Da
  • Tip construcție
    Cărămidă
  • Număr etaje clădire
    2
  • Intabulare
    Există
  • Mod de dobândire
    Autorizație de construire
  • Certificat Energetic
    Există
  • Clasă Energetică
    B

Facilități

Acoperiș
Apă
Cabină de duș
Cadă
Canalizare
CATV
Centrală proprie
Curent
Faianță
Gaz
Gresie
Iluminat stradal
Încălzire prin pardoseală
Interfon
Internet
Izolație exterioară
Loc de joacă copii
Mijloace de transport în comun
Mobilat parțial
Parcare deschisă
Parchet
Podele granit
Străzi asfaltate
Telefon
Vedere spre munte
Videointerfon
Vopsea lavabilă
DaVinci Homes - DaVinci Homes
DaVinci Homes
Manager Vânzări DaVinci

0371513222


Solicită chiar acum o vizionare
Telefon
Sună acum Solicită vizionare
Necesare:

Site-ul nu poate funcționa corect fără aceste cookie-uri. Vezi cookie-urile

Statistică:

Strângem statistici anonime despre voi, vizitatorii unici, pentru a vă îmbunătăți experiența dumneavoastră. Vezi cookie-urile

Marketing:

Pentru a ne promova mai eficient serviciile noastre, folosim cookies pentru a vă identifica și a vă oferi proprietăți și servicii personalizate. Vezi cookie-urile

Acest site folosește cookies, află detalii. Alege ce tipuri de cookies dorești să permitem: