ID CP2021257
Penthouse 4 camere - 2 bai, 103.55 mp - (ALP-20J- DO-ap.7)
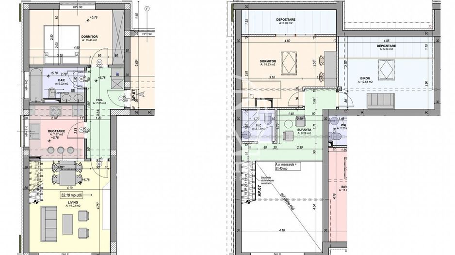
ID CP2021257
170,000 € TVA inclus
Penthouse de vanzare in Sibiu cu 4 camere, la cheie, situat in ansamblu rezidential DaVinci Homes, in zona de Vest a orasului SIbiu.
Imobilul are o suprafata utila de 103.55 mp si beneficiaza de o logie cu suprafata de 7.97 mp.
Descriere imobil:
- etaj 2/2
- living cu inaltime de 5.6 m
- incalzire in pardoseala
- 2 bai
- loc de parcare
- multa lumina naturala si vedere catre munti
- logie cu sticla securizata si sistem de captare al apelor
- orientare sudica
- jaluzele electrice
- predare la stadiul de finisat la cheie
- izolatie cu vata bazaltica
- granit pe casa scarii.
Avantaje ansamblu:
- ocupare teritoriala eficienta, 45% spatii verzi
- larice siberian si piatra naturala aplicate pe exteriorul vilelor
- locuri de joaca amenajate de dezvoltator in cadrul ansamblului.
- acces facil, lipsit de ambuteiaje rutiere
- 4 cai de acces.
Locuinta poate fi achizitionata si cu ajutorul unui credit bancar
(apartamentul nr. 7 vila 20J ALP)
Comision 0 la achizitionare.
Vino in ansamblul nostru, programeaza acum o vizionare si vezi cele mai noi apartamente de pe piata de imobiliare Sibiu.