ID CP2280163

Penthouse 2 camere - 77.8 mp, intabulat (HOL-52N-L-ap.6)

ID CP2280163

133,000 € TVA inclus

Apartament cu 2 camere de vânzare
Exterior Vest, Sibiu
77.8 mp
2024

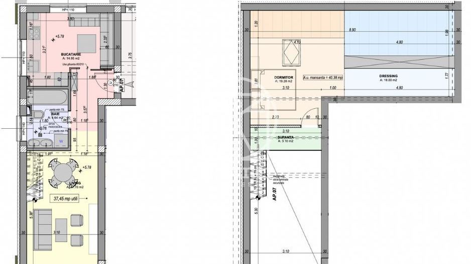
Penthouse de vanzare in Sibiu cu 2 camere, situat in cartierul rezidential DaVinci Homes, in zona de Vest a orasului Sibiu.

Imobilul este intabulat si are o suprafata utila de 77.8 mp si beneficiaza de o logie cu suprafata de 6.24 mp.

Descriere penthouse in Sibiu:

- etaj 2/2

- bucatarie separata

- living cu inaltime de 5.6 m

- incalzire in pardoseala

- dressing

- geam de aerisire la baie

- loc de parcare

- multa lumina naturala si vedere catre munti

- logie cu sticla securizata si sistem de captare al apelor

- izolatie cu vata bazaltica

- granit pe casa scarii.

Avantaje ansamblu DaVinci Homes:

- apartamente noi

- ocupare teritoriala eficienta, 45% spatii verzi

- larice siberian si piatra naturala aplicate pe exteriorul vilelor

- locuri de joaca amenajate de dezvoltator in cadrul ansamblului.

- acces facil, lipsit de ambuteiaje rutiere

- 4 cai de acces.

Locuinta poate fi achizitionata si cu ajutorul unui credit bancar.

(apartamentul nr. 6 vila 52N HOL)

Vino in ansamblul nostru, programeaza acum o vizionare si vezi cele mai noi apartamente pe piata de imobiliare Sibiu.

Comision 0 la achizitionare.

Citește mai mult

  • Tip apartament
    Apartament
  • Compartimentare
    Semidecomandat
  • Număr camere
    2
  • Dormitoare
    1
  • Număr bucătării
    1
  • Număr băi
    1
  • Geam la baie
    Da
  • Etaj
    2
  • Suprafață utilă
    77.8 mp
  • Suprafață construită
    90 mp
  • Orientare
    Sud
  • Confort
    Lux
  • Stare interior
    Finisat modern
  • Anul finisării
    2024
  • Număr balcoane
    1
  • Număr locuri parcare
    1
  • Imobil
    Casă / Vilă
  • Stadiu construcție
    Finalizată
  • An construcție
    2024
  • Construcție nouă
    Da
  • De la dezvoltator
    Da
  • Tip construcție
    Cărămidă
  • Număr etaje clădire
    2
  • Intabulare
    Există
  • Mod de dobândire
    Autorizație de construire
  • Certificat Energetic
    Există
  • Clasă Energetică
    B

Facilități

Acoperiș
Apă
Bucătărie închisă
Canalizare
CATV
Centrală proprie
Curent
Gaz
Glet
Iluminat stradal
Încălzire prin pardoseală
Interfon
Internet
Izolație exterioară
Loc de joacă copii
Mijloace de transport în comun
Nemobilat
Parcare deschisă
Podele granit
Străzi asfaltate
Telefon
Vedere spre munte
Videointerfon
Vopsea lavabilă
DaVinci Homes - DaVinci Homes
DaVinci Homes
Manager Vânzări DaVinci

0371513222


Solicită chiar acum o vizionare
Telefon
Sună acum Solicită vizionare
Necesare:

Site-ul nu poate funcționa corect fără aceste cookie-uri. Vezi cookie-urile

Statistică:

Strângem statistici anonime despre voi, vizitatorii unici, pentru a vă îmbunătăți experiența dumneavoastră. Vezi cookie-urile

Marketing:

Pentru a ne promova mai eficient serviciile noastre, folosim cookies pentru a vă identifica și a vă oferi proprietăți și servicii personalizate. Vezi cookie-urile

Acest site folosește cookies, află detalii. Alege ce tipuri de cookies dorești să permitem: