ID CP2022590

Apartament 2 camere, 52.89 mpu, intabulat (MJ-50M-Da-ap.3)

ID CP2022590

127,000 € TVA inclus

Apartament cu 2 camere de vânzare
Exterior Vest, Sibiu
52.89 mp
2023

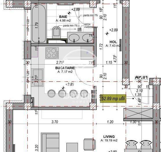
Apartament cu 2 camere, decomandat, situat in cartierul rezidential DaVinci Homes, in zona de Vest a orasului Sibiu.

Imobilul are o suprafata utila de 52.89 mp si beneficiaza de o doua logii cu suprafata totala de 9.42 mp.

Descriere imobil:

- etaj 1/2

- incalzire in pardoseala

- loc de parcare

- logie 9.42 mp

- logie cu sticla securizata, orientare sudica

- predare la stadiul de mobilat si utilat complet.

Avantaje ansamblu:

- ocupare teritoriala eficienta, 45% spatii verzi

- locuri de joaca amenajate de dezvoltator in cadrul ansamblului.

- acces facil, lipsit de ambuteiaje rutiere

- 4 cai de acces.

Locuinta poate fi achizitionata si cu ajutorul unui credit bancar.

(apartamentul nr. 3 vila 50M - MJ)

Vino in ansamblul nostru, programeaza acum o vizionare.

Citește mai mult

  • Tip apartament
    Apartament
  • Compartimentare
    Decomandat
  • Număr camere
    2
  • Dormitoare
    1
  • Număr bucătării
    1
  • Număr băi
    1
  • Geam la baie
    Da
  • Etaj
    1
  • Suprafață utilă
    52.89 mp
  • Suprafață construită
    65 mp
  • Orientare
    Sud
  • Confort
    Lux
  • Stare interior
    Finisat modern
  • Anul finisării
    2024
  • Număr balcoane
    2
  • Număr locuri parcare
    1
  • Imobil
    Casă / Vilă
  • Stadiu construcție
    Finalizată
  • An construcție
    2023
  • Construcție nouă
    Da
  • De la dezvoltator
    Da
  • Tip construcție
    Cărămidă
  • Număr etaje clădire
    2
  • Intabulare
    Există
  • Mod de dobândire
    Autorizație de construire
  • Certificat Energetic
    Există
  • Clasă Energetică
    B

Facilități

Acoperiș
Apă
Cadă
Canalizare
CATV
Centrală proprie
Curent
Faianță
Gaz
Gresie
Iluminat stradal
Încălzire prin pardoseală
Interfon
Internet
Izolație exterioară
Jaluzele verticale
Loc de joacă copii
Mijloace de transport în comun
Nemobilat
Parcare deschisă
Parchet
Podele granit
Rulouri / obloane electrice
Străzi asfaltate
Telefon
Vedere spre munte
Videointerfon
Vopsea lavabilă
DaVinci Homes - DaVinci Homes
DaVinci Homes
Manager Vânzări DaVinci

0377927117


Solicită chiar acum o vizionare
Telefon
Sună acum Solicită vizionare
Necesare:

Site-ul nu poate funcționa corect fără aceste cookie-uri. Vezi cookie-urile

Statistică:

Strângem statistici anonime despre voi, vizitatorii unici, pentru a vă îmbunătăți experiența dumneavoastră. Vezi cookie-urile

Marketing:

Pentru a ne promova mai eficient serviciile noastre, folosim cookies pentru a vă identifica și a vă oferi proprietăți și servicii personalizate. Vezi cookie-urile

Acest site folosește cookies, află detalii. Alege ce tipuri de cookies dorești să permitem: